8 800 551 00 80
Звонки по РФ бесплатно
partner@dstrana.ru
Компания «Доступная страна», уже более десяти лет производит и поставляет специализированное оборудования для маломобильных групп населения. Ниже мы хотели бы поделиться опытом реализации проекта по адаптации санузла для людей с ограниченными физическими возможностями.

К нам обратилась строительная компания, которая занимается строительством гимназии, расположенной на территории Ямало-Ненецкого автономного округа.
    ОСТАВИТЬ ЗАЯВКУ
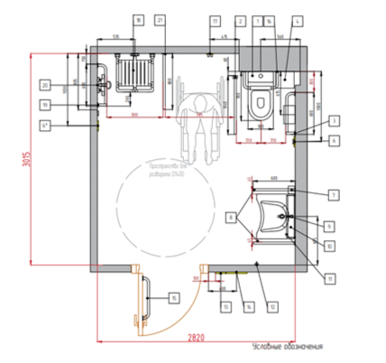
    План санузла, который нам прислал заказчик
    Ход работы:
    После тщательного анализа опросного листа, предоставленного заказчиком, и получения всей необходимой информации о проектируемом помещении, мы приступили к созданию чертежей. Необходимо было создать три проекта для шести санузлов. В двух санузлах предусмотрена душевая кабина.

    В исходном плане отсутствует специализированное оборудование для людей с инвалидностью. Габариты помещений соответствуют нормам.

    В итоге были разработаны три чертежа санузла с полностью нормативным оборудованием – сантехникой, поручнями, аксессуарами, системами вызова и тактильно-визуальными знаками доступности. Для помещений санузлов, в которых планируется установка душевой кабины, мы добавили специальное сиденье для того, чтобы человек с нарушениями ОДА мог принять душ самостоятельно. В душевую кабину была добавлена дополнительная система вызова.
      Вариант 1
      Вариант 2
      Вариант 3
      Результат:
      Мы продемонстрировали, как продуманный дизайн и грамотный подбор оборудования способны не только отвечать законодательным требованиям, но и создавать комфортное и удобное пространство для учеников и посетителей с ОВЗ.
        ПОДРОБНЕЕ О ПРОЕКТЕ НА САЙТЕ
        ЗАКАЗАТЬ ПРОЕКТ
        Компания «Доступная страна»: