8 800 551 00 80
Звонки по РФ бесплатно
partner@dstrana.ru
В нашей БИБЛИОТЕКЕ ПРОЕКТИРОВЩИКОВ Вы найдете комплексные решения по Доступной среде:

  • планировки санузлов различного типа;
  • правильные схемы раскладки тактильной плитки и тактильных индикаторов;
  • правильную расстановку оборудования для входных групп;
  • чертежи оборудования в формате PDF и DWG;
  • полезные материалы, которые пригодятся вам при проектировании.
Мы таже можем БЕСПЛАТНО отрисовать для ВАШЕГО ПРОЕКТА необходимые чертежи с правильной расстановкой оборудования по Доступной среде.

Ознакомьтесь с недавно реализованным проектом - разработка нормативного проекта и поставка оборудования для санузлов для нового частного медицинского центра в Санкт-Петербурге. Целью проекта было создание доступной и комфортной среды для посетителей с ограниченной мобильностью.
    ОСТАВИТЬ ЗАЯВКУ
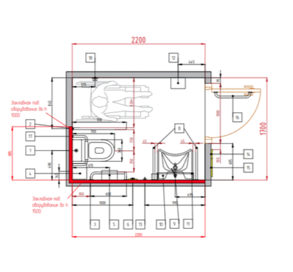
    План санузла, который нам прислал заказчик
    Ход работы:
    Процесс работы включал в себя несколько этапов: от запроса информации о помещениях до подготовки проектных чертежей.

    По итогу специалисты компании «Доступная страна» подготовили нормативные проекты для четырех санузлов с полным комплектом нашего оборудования, включая унитазы и раковины для инвалидов, поручни, систему вызова помощи, тактильно-визуальные знаки доступности, диспенсер для туалетной бумаги и другие аксессуары.

    Результат:
    Данный проект по адаптации санузлов для людей с ограничениями жизнедеятельности стал примером грамотного подхода к созданию доступной среды в медицинских учреждениях.
      Вариант 1
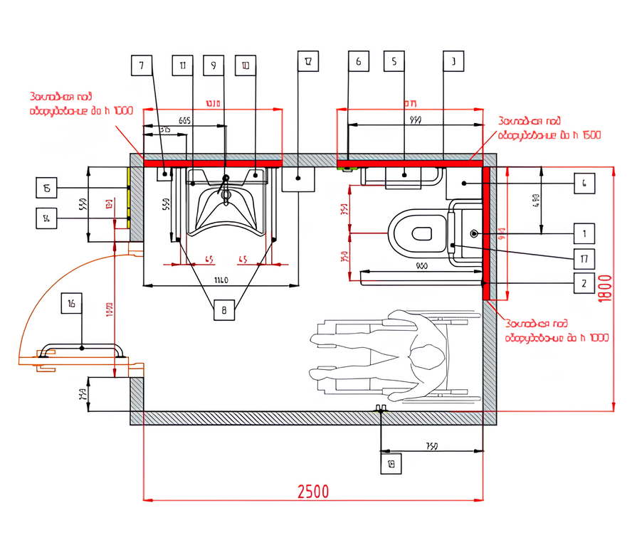
      Вариант 2
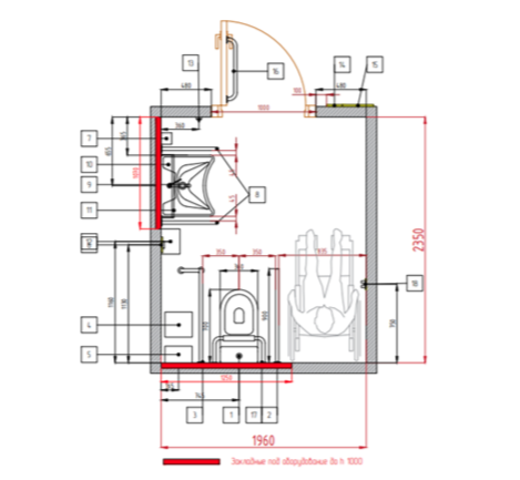
      Вариант 3
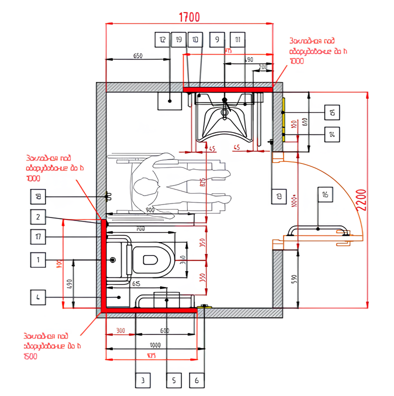
      Вариант 4
      Результат:
      Данный проект по адаптации санузлов для людей с ограничениями жизнедеятельности стал примером грамотного подхода к созданию доступной среды в медицинских учреждениях.
        ПОДРОБНЕЕ О ПРОЕКТЕ НА САЙТЕ
        РЕКОМЕНДУЕМ:
        ТОПы сантехнического оборудования
        Раковина для инвалидов DSTRANA 640*550*165мм
        Купить на сайте>>
        Цена: 9 900 р
        Унитаз для инвалидов и пожилых соответствующий нормам DSTRANA повышенной комфортности
        Купить на сайте>>
        Цена: 36 500 р
        Автоматический открыватель (доводчик) двери DStrana
        Купить на сайте>>
        Цена: 60 000 р
        Поручень для раковины трехопорный универсальный 600мм
        Купить на сайте>>
        Цена: 4 650 р
        6 300 р
        ОСТАВИТЬ ЗАЯВКУ
        Компания «Доступная страна»: