8 800 551 00 80
Звонки по РФ бесплатно email@dstrana.ru
В повседневной жизни мама с маленьким ребенком сталкивается с определенными трудностями, связанными с необходимостью решить некоторые деликатные проблемы, возникающие у малышей.

Комната матери и ребёнка - отдельное помещение специального назначения для родителей и их детей дошкольного возраста, предназначенное для кормления, переодевания ребёнка.

В компании "Доступная страна" мы создаем бесплатные проекты комнат матери и ребенка, а также предлагаем готовые решения
в формате PDF и DWG.
Оставьте заявку или напишите нам на email@dstrana.ru или в WhatsApp
ОСТАВИТЬ ЗАЯВКУ
Готовые решения для санузла совмещенного
с комнатой матери и ребенка:
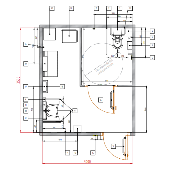
Санузел для инвалидов совмещенный с комнатой матери и ребенка. Отдельная кабина, подвесной унитаз арт. 4622.
Габаритные размеры помещения: 3 х 3,5 м.

Подробнее на сайте>>
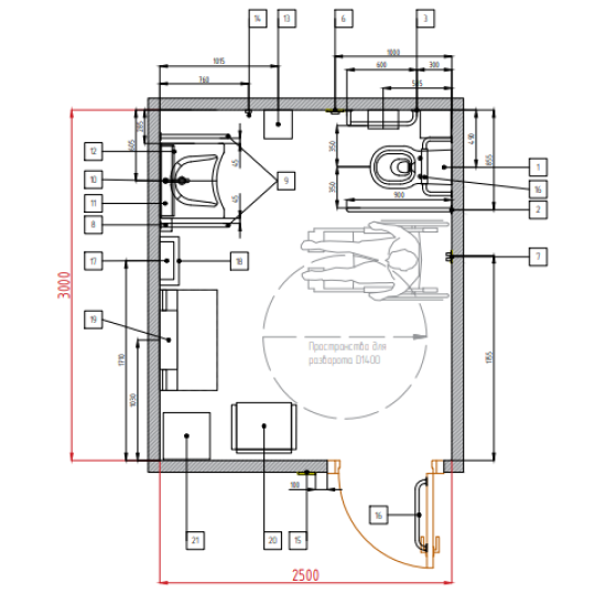
Санузел для инвалидов совмещенный с комнатой матери и ребенка.(с подвесным унитазом арт. 4622)
Габаритные размеры помещения: 3 х 2,5 м.

Подробнее на сайте>>

Мы создаем бесплатные проекты комнат
матери и ребенка:
Комната матери и ребенка (п. 6.3.7 СП 59.13330.2020, п.5.64 СП 118.13330.2022) оснащаются в следующих учреждениях:
  • в торгово-развлекательных комплексах;
  • в многофункциональных центрах;
  • в зданиях выставок и музеев;
  • на вокзалах: речных, автовокзалах, аэровокзалах;
  • на транспортно-пересадочных узлах.
Как рассчитывается количество мест:
− Одно место на 1000 посетителей (покупателей, пассажиров).

Необходимое оборудование:
  • пеленальный стол;
  • душевой поддон;
  • унитаз;
  • умывальник.
Минимальные размеры комнаты матери и ребенка: 2,5 x 3,0 м.
Сантехническое оборудование в наличии:
Откидной пеленальный столик DStrana
Купить на сайте>>
Цена: 21 500 р
Унитаз подвесной с инсталляцией для инвалидов соответствующий нормам DSTRANA
Купить на сайте>>
Цена: 55 800 р
Раковина для инвалидов DSTRANA 640х550х165мм
Купить на сайте>>
Цена: 9 900 р
Раковина керамическая детская Y7 395х310х155мм
Купить на сайте>>
Цена: 3 800 р
Поручень для туалета настенный откидной без бумагодержателя по ГОСТ 900x150 мм Ø 32
Купить на сайте>>
Цена: 10 100 р
Универсальная система вызова персонала APE510.2ш для входа и санузла
Купить на сайте>>
Цена: 27 270р
Работаем с коммерческими организациями по 100% предоплате,
с государственными учреждениями - по постоплате, по 44/223-ФЗ.
Участвуем в аукционах и бесплатно помогаем с техническими заданиями на аукцион.
Не нашли у нас необходимого вам оборудования?
Обращайтесь - найдем или изготовим для Вас под заказ!
Поставляем заказы в любую точку страны.
ОСТАВИТЬ ЗАЯВКУ
Компания «Доступная страна»: