8 800 551 00 80
Звонки по РФ бесплатно
WhatsApp
Dzen.ru
Компания «Доступная страна» предлагает бесплатную экспертную помощь проектировщикам и строительным организациям в создании доступной среды.

На нашем сайте, в разделе "Библиотека проектировщика", вы можете получить готовые проектные решения для типовых сценариев адаптации. Мы предоставляем профессионально подготовленные схемы и чертежи в формате DWG и PDF - они подходят для включения в рабочую документацию без дополнительной доработки. Это экономит время, снижает риски замечаний со стороны проверяющих органов и помогает сделать работу более прозрачной и качественной.

На сайте мы собрали подробные готовые планировочные решения для санузлов и душевых:
- проекты санузлов с напольным унитазом,
- решения с подвесным унитазом,
- адаптированные душевые,
- санитарные зоны, совмещённые с комнатой матери и ребёнка.

Все схемы составлены с учётом эргономики, нормативных требований и практического опыта работы на объектах по всей России.
✔ Проектируем общественные санузлы любого типа
✔ Скидки за комплексный заказ
✔ Покупка в одном месте - экономия на доставке
✔ Комплектация объекта с учетом больших объемов и специфики проекта
✔ Оперативное выполнение заказов
✔ Надежный поставщик
ОСТАВИТЬ ЗАЯВКУ
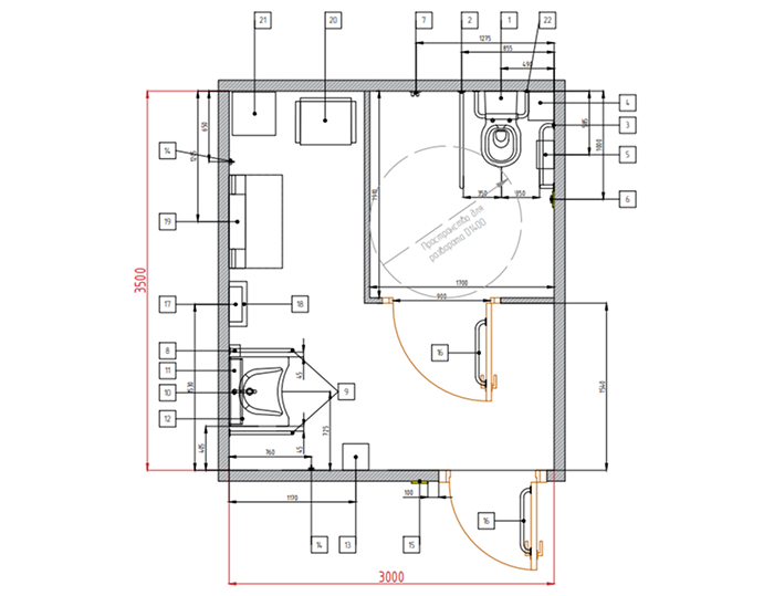
Готовые планировочные решения
для санузлов и душевых
Готовые решения с напольным унитазом
Подробнее на сайте>>
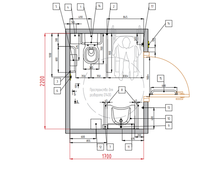
Готовые решения с подвесным унитазом
Подробнее на сайте>>
Готовые решения для душевых
Подробнее на сайте>>
Готовые решения для санузла совмещенного с комнатой матери и ребенка
Подробнее на сайте>>
Больше информации на сайте >>
Возможно Вам будет полезно
Оборудование для санузла
Купить на сайте
СКАЧАТЬ ПРАЙС ЛИСТ
Бесплатный расчет по вашей смете
Бесплатно просчитаем стоимость продукции согласно Вашей спецификации.
Подбор оборудования по смете, проекту или фото
Разберемся с тем, что заложено в вашу смету или проект.
При отсутствии проекта и/или сметы выполним подбор по фото, а также бесплатно подготовим необходимые вам чертежи с правильной расстановкой оборудования по доступной среде.
Соответствие СП и ГОСТ
Подберем оптимальное оборудование, точно соответствующее заданным характеристикам и отвечающее законодательным нормам
Надежный поставщик, эксперт в области адаптации
Производим и поставляем продукцию по программе Доступная среда с 2013 года.
ОСТАВИТЬ ЗАЯВКУ
Компания «Доступная страна»: