8 800 551 00 80
Звонки по РФ бесплатно email@dstrana.ru
Проектирование и обустройство доступной среды неразрывно связаны с подбором и правильной расстановкой оборудования для МГН. Ключевую роль здесь играют требования многочисленных нормативных документов.

Сориентироваться в оборудовании и нормативах теперь стало проще! В Библиотеке проектировщика на сайте компании «Доступная страна» появились готовые спецификации оборудования по доступной среде. Спецификации затрагивают все основные функциональные зоны: санузлы, входные группы, внутренние помещения, пути движения и эвакуации.

Каждая позиция снабжена техническими характеристиками и ссылками на пункты отраслевых ГОСТ и СП. Структура спецификаций позволяет легко включать данные в проектную и рабочую документацию.

Готовые спецификации оборудования помогут:
— сократить время на сбор информации;
— защитить проект без лишних правок;
— уверенно обосновать решения перед заказчиком и экспертизой.
Скачайте спецификации оборудования на сайте >>
Скачайте в Библиотеке проектировщика:
Готовые планировочные решения для санузлов и душевых
Посмотреть на сайте>>
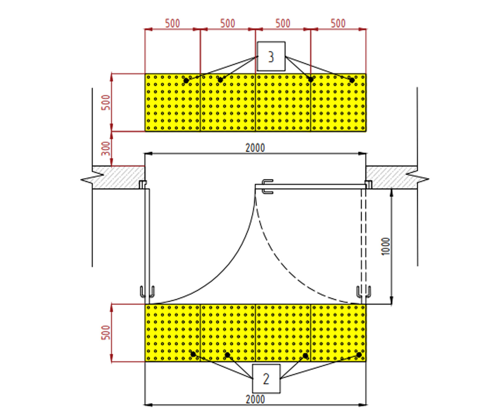
Готовые схемы и чертежи размещения ТНУ
Посмотреть на сайте>>
Схемы размещения тактильно-визуального оборудования
Посмотреть на сайте>>
Чертежи размещения систем вызова помощи
Посмотреть на сайте>>
Чертежи оборудования в формате DWG
Купить на сайте>>
BIM-модели оборудования
для Autodesk Revit
Купить на сайте>>
Библиотека проектировщика на сайте >>
СКАЧАТЬ ПРАЙС ЛИСТ
Бесплатный расчет по вашей смете
Бесплатно просчитаем стоимость продукции согласно Вашей спецификации.
Подбор оборудования по смете, проекту или фото
Разберемся с тем, что заложено в вашу смету или проект.
При отсутствии проекта и/или сметы выполним подбор по фото, а также бесплатно подготовим необходимые вам чертежи с правильной расстановкой оборудования по доступной среде.
Соответствие СП и ГОСТ
Подберем оптимальное оборудование, точно соответствующее заданным характеристикам и отвечающее законодательным нормам
Надежный поставщик, эксперт в области адаптации
Производим и поставляем продукцию по программе Доступная среда с 2013 года.
ОСТАВИТЬ ЗАЯВКУ
Компания «Доступная страна»: